Аренда офиса - Мельникова ул., 7, стр. 1, 2, 537.5 кв.м.
Заявка на просмотр офиса
Посмотреть офис
ID блока: 48636
Дата обновления: 04.06.2025
Описание офиса
Условия аренды:
Ставка
15 000 ₽ за м² в год / 671 875 ₽ в месяц
Налогообложение
20% ОСН
2 500 ₽ за м² в год / 111 979 ₽ в месяц
2 500 ₽ за м² в год / 111 979 ₽ в месяц
Эксплуатационные расходы (OPEX)
Включены
Характеристики офиса:
Этаж
1
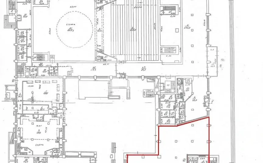
Площадь
537.5 м²
Состояние
С отделкой
Мебель
Нет
Обзор актуальных объектов инвестиционной недвижимости
Фото, планировки и характеристики.
Лучшие предложения с гарантированной доходностью
Лучшие предложения с гарантированной доходностью
Хочу получить каталог
