Продажа офиса - St. Nickolas, Никольская ул., 10/2, 105.8 кв.м.
Заявка на просмотр офиса
Посмотреть офис
ID блока: 53145
Дата обновления: 03.12.2021
Описание офиса
Условия продажи:
Стоимость
2 200 640 $ / 20 800 $ за м²
Налогообложение
УСН
Характеристики офиса:
Этаж
3
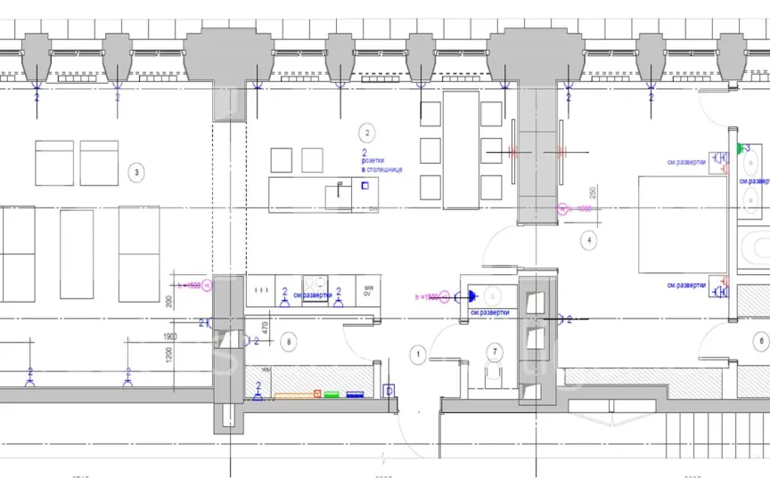
Площадь
105.8 м²
Состояние
С отделкой
Мебель
Нет
Обзор актуальных объектов инвестиционной недвижимости
Фото, планировки и характеристики.
Лучшие предложения с гарантированной доходностью
Лучшие предложения с гарантированной доходностью
Хочу получить каталог
