Продажа street retail помещения, 840 м²
ID: 160312
Расположение
Московская обл, г Наро-Фоминск, Туннельный проезд, д 9А
Этаж
1-2
Площадь
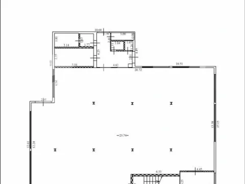
840 м²
85 000 000 руб.
Презентация объекта
Получить консультацию
аренда
Основные характеристики
Технические характеристики
Высота потолков
4 м
Коммерческие условия
Ставка в месяц
85 000 000 руб.
Система налогообложения
УСН
Предложить свою цену
Описание
Помещение находится в Московской области, в районе "Наро-Фоминский" г.о., Наро-Фоминск, Туннельный пр., 9А. ПОЛНОСТЬЮ ЗАСЕЛЁННЫЙ арендаторами НОВЫЙ ТОРГОВЫЙ ЦЕНТР в центральной части города на основной магистрали (1я линия). - Отдельно стоящее здание! 2 этажа, 840 кв.м.; - Центральные коммуникации; - Центральное кондиционирование; - Камеры; - Сигнализация; - Потолки 4 метра; - Есть возможность надстройки 3-го этажа. - земля в собственности
Презентация объекта
Отправить
Похожие предложения
г. Москва, 3-я Хорошёвская ул., 25к2
м. Октябрьское поле
~13 мин.
Общая площадь: 133 м²
Арендаторы: Кафе, Пункт выдачи Wildberries
по запросу ₽ / УСН
Связаться с отделом продажи
Тушинская ул.24 стр.15
м. Тушинская
~5 мин.
Общая площадь: 119 м²
Арендаторы: Кафе
по запросу ₽ / УСН
Связаться с отделом продажи
г Москва, Огородный пр-д, 10
м. Бутырская
~4 мин.
Общая площадь: 165 м²
по запросу ₽ /
Связаться с отделом продажи
Обзор актуальных объектов инвестиционной недвижимости
Фото, планировки и характеристики.
Лучшие предложения с гарантированной доходностью
Лучшие предложения с гарантированной доходностью
Хочу получить каталог
