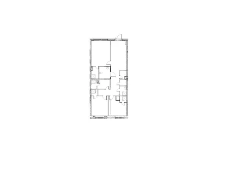
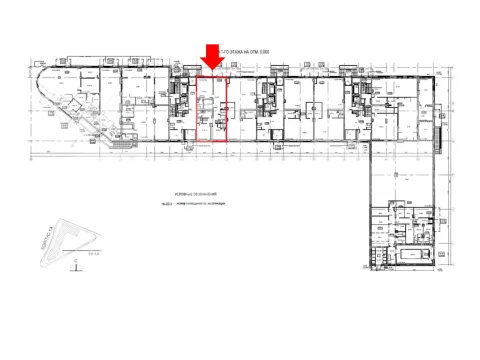
Продажа street retail помещения, 96 м²
ID: 162196
Расположение
Нагатинская пойма, проектируемый пр-д, 4062, вл.6
м. Технопарк
~14 мин.
Этаж
1
Площадь
96 м²
55 680 000 руб.
Презентация объекта
Получить консультацию
аренда
Основные характеристики
Технические характеристики
Высота потолков
4.1 м
Электрическая мощность
19 кВт
Коммерческие условия
Ставка в месяц
55 680 000 руб.
Система налогообложения
Предложить свою цену
Описание
Продаётся помещение в ЖК "Nagatino i-Land". Расположенный в 5 минутах пешком от метро «Технопарк». Уникальное сочетание транспортной доступности, оригинальной архитектуры и развитой инфраструктуры. Nagatino i-Land отличается невероятно удобным расположением. Дорога до центра столицы займет не более 20 минут как на автомобиле, так и на общественном транспорте.
Презентация объекта
Отправить
Похожие предложения
Планерная ул., 12, кор. 1
м. Планерная
~2 мин.
Общая площадь: 21 м²
350 000 ₽ / УСН
Связаться с отделом продажи
г Москва, пр-кт Генерала Дорохова, д 49
м. Минская
~3 мин.
Общая площадь: 126 м²
по запросу ₽ /
Связаться с отделом продажи
г Москва, ул Панфилова, д 2 к 2
м. Октябрьское поле
~12 мин.
Общая площадь: 101 м²
Арендаторы: Аптека
по запросу ₽ / УСН
Связаться с отделом продажи
Обзор актуальных объектов инвестиционной недвижимости
Фото, планировки и характеристики.
Лучшие предложения с гарантированной доходностью
Лучшие предложения с гарантированной доходностью
Хочу получить каталог
